1952/1962 Triumph TR 1, 2, 3, soleil…
On va on vient…, il y a des périodes de vie vides…, des moments de léger désintérêt…, à lire des livres plutôt que de se perdre dans les nullités imposées par les merdias omniprésents…, à s’affairer pour ne pas s’enfoncer…, à bouger pour ne pas sombrer…, à chanter pour ne pas radoter…, à créer pour ne plus se faire lobotomiser…, à s’ingénier pour ne plus se ramasser…
Après un début d’année en fanfare… et des annonces de folies qui risquaient de bien martyriser les neurones, ce mois d’avril 2014 aurait pu être la fin du monde, à défaut de le faire frissonner…
En résumé : presque rien qui ne m’ait donné envie de m’adonner à une écriture hors contrôle sur GatsbyOnline.
Pourtant il y a eu de belles choses, je suisse tombé sur de belles surprises (l’inverse, la laideur des choses et des gens, a tendance à me faire fuir), ça sentait les douilles encore brûlantes…, la poudre de perlimpinpin qu’on faisait exploser pour tromper les beaufs…, difficile de disséquer un monde qui tourne fou avant de briser la faucheuse et de partir sur une renaissance en bout de parcours…, en trompe la mort !
Je ne suis pas tombé en enfer, mais les portes métalliques étaient entrouvertes, bien en vue, c’était pourtant beau, presque rassurant, légèrement sci-fi…, un peu juke, comme un Kuedo en bout de course…, complètement déshydraté, la peau sur les os, je rampais dans le désert avec des vautours me tournant déjà autour de la tête…, l’un d’eux n’étant autre que l’inconsistant crétin qui a contribué au vol de ma LéaFrancis…, l’un des autres étant un des commissaires-priseurs-vampires en automobiles de collection qui se régénèrent en suçant le sang de leurs clients inconscients.
Je ne vous filerai pas plus de billes, ne vous attendez pas à une tirade émotionnelle.., que dalle.., il y a toutefois parfois un peu de rage à y repenser, mais pas question de me laisser aller dans une longue chute en spirale droguée, hypnotique en mode flingueur de salopards pendant une lente overdose en slow motion… ou, si les yeux ne se révulsent pas, c’est qu’on n’est plus humain…
Quelques coup de butoirs pour me sortir d’une torpeur ouatée et morbide qui se rapproche d’un tabassage en règle, tout en testant les limites des possibles en fin de match, histoire de ne pas me provoquer en niaiseries sur les autoroutes du monde…, je me suis fait plaisir en achetant la bagnole que chantait le Johnny de mes jeunes années : Yeaaaaahhhhhhhhhhhhhhh !
Un bel objet, rouge, un diamant de la route qui peut autant passionner qu’ennuyer, mais toujours en suffoquant…, c’est comme un vieux disque que je re-écoute en souriant de la mièvrerie des paroles plaquées en accords-raccords de longues plages bileuses et angoissantes, aux motifs récurrents, annihilant toute notion de temps…, il y a un peu de tout dans ce bordel.
Certains pourront arguer sur le fait que ce morceau musical manque de vrais moments forts, ou de tirades épiques, ce qui est partiellement vrai, tout comme la voiture…, mais en enfer, pas besoin de cavalcade, autant prendre son temps, on a l’éternité pour mariner…, le diable est dans les détails, oui, tout le temps…
Autant dire que ça date… et sur une période aussi longue, j’ai tout vu, fouillé les contrées les plus reculées du monde, fouiné dans les endroits les plus obscurs, voyagé très loin pour ramener des pépites roulables les plus aberrantes possibles, ouvrant même plusieurs fois les boîtes de Pandore que sont les ventes aux enchères d’automobiles dites “de collection”…, alors, que peut-il bien rester à découvrir ?
Certes, le grand barnum a encore aujourd’hui ses héritiers, ses créateurs inconscients, ses constructeurs sans scrupules, toujours debout, pour que perdure la tradition…, mais en matière de “découvertes émotionnelles”, que peut-il bien rester de genre complètement nouveau, j’entends, d’automobiles qui n’ont pas d’antécédents ou qui remettraient toutes notions en question…, au point qu’à chaque nouvelle trouvaille, on se dit qu’on arrive au bout ?
Quelle erreur.., car s’il y a bien une chose dont peuvent se vanter les “ceusses” qui tournent en rond dans l’immense panier de crabes qu’est le monde de l’automobile, c’est qu’avec eux, les surprises n’ont jamais de fin…, ces baratineurs tentent d’endoctriner les beaufs sur base d’éléments inexistants et/ou incompréhensibles dans un enchaînement précaire d’arguments bidons assaisonnés d’innombrables mensonges techniques…, une expérience quasi-indicible que j’ai vécu (malheureusement) plusieurs fois… et dont l’intérêt, tout comme la vérité, est ailleurs… et ce n’est pas un hasard.
Une solide expérience a beau avoir affuté mes capacités à repérer certaines manœuvres, à anticiper certains poncifs…, j’avoue être parfois totalement pris au dépourvu…, que ça soit par absence de logique et d’éléments amenés n’importe comment…, que ce soit par le ridicule de diverses situations surgies de nulle part… et par l’étrangeté hypnotique d’éléments délirants dans une spirale sans fin dans l’absurdité et la transe hypnotique.
Cela me déchire le cœur, car si je crève d’envie de vous parler de plein de choses, j’ai également envie que vous découvriez la réalité avec un œil totalement vierge…, c’est ce qui vous permettrait d’halluciner de bout en bout, comme ce fut mon cas…, sur les ravages de l’industrie du grand Capital corrupteur des âmes les plus pures (gag !)…
Voilà, mon préambule se termine, alors que vous pensez que je vous en ai trop écrit…, pffffff !
Croyez-moi, vous êtes bien loin du compte…, une fois le doigt mis dans l’engrenage du premier truc insensé, tout monte crescendo, avec moult détails hallucinogènes qu’on ne voit pas arriver…, jusqu’à un final apocalyptique qui ne retombe pas comme un soufflet de n’importe quoi qu’il a été…, c’est court, mais intense… et surtout complètement débile, surprenant à tous les niveaux…, tout est dit !
John Black, le nouveau patron de Triumph après-guerre, était persuadé qu’une voiture de sport devait être la meilleure façon de pénétrer le marché américain où il rêvait d’imiter le succès des Jaguar XK120…, mais plutôt qu’affronter directement son prestigieux voisin de Coventry, il choisit de cibler une clientèle moins fortunée avec une voiture plus simple : archétype du roadster anglais, la Triumph TR1 inventait une recette qui fera le bonheur de toute une génération de conducteurs…
Créé en 1886 par un immigré allemand, Siegfried Bettmann, le fabricant de motos Triumph Cycle Company se convertit à la fabrication automobile en 1923 avec l’arrivée de son compatriote Moritz Schulte et la fondation de la Triumph Motor Company…, forte des profits réalisés durant la première guerre mondiale, la marque se consacre tout d’abord aux petites voitures économiques…
Mais déjà on peut voir apparaître quelques dérivés sportifs baptisés roadster…, la montée en gamme s’opère via les modèles Gloria et Dolomite mais cela se fait au détriment de la rentabilité…, finalement, Triumph est contraint de revendre sa branche motos avant de finalement être mise en liquidation en 1939.
L’usine historique de Triumph, réquisitionnée pendant la guerre, est dévastée par les bombardements de 1940…, en Novembre 1944, la Standard Motor Company, rachète alors ce qui devient sa filiale sous le nom de Triumph Motor Company (1945) Limited…, la production est ensuite transférée chez Standard à Canley, dans la banlieue de Coventry…
Le premier modèle Triumph sorti d’usine après guerre est le Roadster 1800, en 1946…, malgré son châssis tubulaire et sa carrosserie en aluminium (les stocks d’acier étant très limités), il ne peut séduire la clientèle américaine vitale à sa survie avec ses performances modestes et sa ligne baroque signée Frank Callaby.
Pour gagner en puissance, la Triumph Roadster adopte le moteur 2088cc de Standard en septembre 1948, mais sans plus de succès commercial…, comment, dans ces conditions, John Black va-t-il faire de Triumph l’égal de Jaguar ?
John Black, patron de Standard-Triumph, souhaite emboîter le pas à son ancien partenaire SS, devenu Jaguar, dont le roadster XK120 va afficher un succès insolent outre-Atlantique à partir de 1948…
Malheureusement, à cause d’un coût de revient trop élevé, ce projet est finalement très vite abandonné… et c’est suite au refus de Morgan que Black, blessé dans son orgueil, se met réellement en tête de construire son propre roadster sportif.
Dans un premier temps, ce n’est pas son idée et il préfère tenter un rapprochement avec Morgan avec un prototype ambitieux, baptisé Roadster TRX (TR pour “Triumph Roadster”) qui est exposé au salon de Londres en 1950…, la voiture est dotée d’une caisse en aluminium, d’un overdrive, de phares escamotables et de gadgets électriques, telle l’ouverture du capot, ou commandée par la dépression d’admission moteur, tout comme les sièges et le déploiement de l’antenne radio…
En 1952, le type 20TS (plus connu sous le nom de TR1) est présenté au salon automobile de Earl’s Court…, construit à la hâte sur un châssis de Standard Nine d’avant-guerre, ce prototype pour le moins approximatif va pourtant poser les bases du futur roadster Triumph TR2 avec lequel la firme va réaliser son rêve américain.
Afin de revoir la tenue de route et le châssis de son futur roadster, Triumph fait appel au pilote de Formule 1 Ken Richardson qui vient de quitter BRM…, ce dernier va réussir à transformer cette “potentialité roulante” en une voiture de sport digne de ce nom.
Les modifications visent en priorité à rendre le châssis plus rigide…, au niveau de la carrosserie, les lignes du roadster 20TS avec ses deux phares ronds à demi intégrés et ses portières échancrées dépourvues de vitres sont globalement conservées, à l’exception de la poupe qui incorporait la roue de secours…
Le travail sera consacré à remodeler cette partie pour obtenir un coffre plus logeable et une ligne plus gracieuse : la roue de secours est camouflée dans le coffre et accessible derrière une trappe supportant la plaque d’immatriculation tandis que le porte-à-faux arrière est allongé pour effiler la ligne.
En février 1953, avant sa présentation au salon de Genève, la nouvelle Triumph TR2 est encore loin d’être au point mais elle fait pourtant déjà parler d’elle comme rivale potentielle des Austin Healey, Morgan et Jaguar avec son rapport prix/performances très agressif.
L’objectif de proposer une voiture robuste, économique, simple et performante est définitivement concrétisé en juillet 1953, lorsque la TR2 est commercialisée…, avec une longueur dépassant à peine les 3.80 m et une faible largueur, la Triumph TR2 est une petite voiture de sport, légère et attractive…, l’habitacle, rudimentaire, est traité avec un certain soin et possède de nombreux manomètres…, le mariage des cuirs et des chromes fait quant à lui toujours son effet.
Ken Richardson s’emploie également à tirer des chevaux supplémentaires du 4 cylindres en ligne Standard de 2088cc…, pourtant, dérivé du 1850cc équipant aussi les tracteurs Ferguson et doté d’un simple vilebrequin à 3 paliers, on peut dire qu’il n’a rien de fondamentalement sportif à la base…, mais il est conçu pour durer…, des pistons en aluminium sont montés dans des chemises en alliage spécial (nickel-chrome)…, selon le principe des chemises humides inspiré de la célèbre Citroën “Traction Avant”, elles sont insérées dans le bloc-cylindres, qui se comporte comme un simple carter rempli d’eau.
Par ailleurs, Triumph songeant déjà à la compétition, l’alésage est judicieusement réduit pour obtenir une cylindrée de 1991cc permettant de concourir dans la catégorie des moins de 2 litres…, Triumph augmente aussi le taux de compression avec un nouvel arbre à cames et de nouveaux carburateurs SU H4…, au final, le moteur développe 90 chevaux SAE à 4800 tr/mn, soit 15 de plus qu’à l’origine…, à l’usage, ce quatre cylindres se montre coupleux et doté d’une jolie sonorité à la faveur d’une ligne d’échappement très libérée…, il procure au roadster Triumph TR2 des performances plus qu’honorables pour l’époque et le meilleur rapport prix/performances du moment : pari tenu !
La boîte de vitesses à quatre rapports de la Vanguard entraînant les roues arrière est plutôt agréable à manier…, la combinaison d’une vitesse supérieure à 160 km/h et d’une consommation de “seulement” 11,3L aux 100 km en conduite mixte, offre à la Triumph TR2 un succès immédiat, notamment aux Etats-Unis qui vont absorber plus de 70 % de la production…
Il faut dire (il faut écrire) que son prix de 2.400$ (soit environ 840.000 anciens francs de l’époque, contre plus de 1,1 million pour une XK120), était un autre argument majeur…, on se rendra compte d’ailleurs assez vite chez Triumph qu’un prix aussi bas n’est pas tenable et ce dernier sera revu à la hausse de 20% en l’espace de 2 ans !
En ordre de marche, la Triumph TR2 pèse 955 kg et son gros 2L0 en fonte n’a pas beaucoup de mal à la déplacer…, bien sûr, j’en vois déjà qui sourient au fond de la classe à la vue de rapport poids/puissance de… 10,6 kg/ch…, mais je vous parle là d’un temps, que les moins de vingt ans… feraient bien de connaître…, les performances, effectivement d’un autre âge, sont suffisantes pour prendre un maximum de sensations, assis au ras du sol, un coude à moitié dehors, le pif et les esgourdes au grand air.
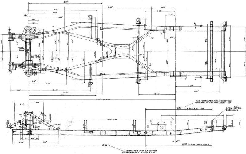
Les commandes sont viriles, ça gronde, ça renifle l’huile et l’essence…, ça tient la route comme ça peut…, équipée d’une suspension avant indépendante issue de la Triumph Mayflower (à ressorts hélicoïdaux et bras triangulaires), plus un essieu rigide à l’arrière, le tout posé sur un vrai châssis séparé à l’ancienne…, la Triumph TR2 ne fait pas référence en matière de précision de conduite, malgré une certaine agilité…, la direction à vis et galet ajoutant sa part de flou à un ensemble qui devient vite artistique dès que l’humidité vient s’intercaler entre le sol et les fines roues de la TR2.
Vigoureuse à bas et mi-régime, la poussée agricole du moteur anglais s’éteint à l’approche des 5000 tours…, qu’importe, on se démène comme un forçat avec la boîte et l’embrayage qui permettent de savourer chaque ratatouillage et pétarade, lorsqu’on joue du double débrayage…, ajoutez à cela un freinage à tambours, fabriqué par Lockheed, aussi peu efficace que stable et vous obtenez un véritable concentré d’émotion pure garantie d’origine contrôlée…, aucun doute, rouler vite en Triumph TR2 c’est du sport !
Sur cette première série, quelques modifications et améliorations mineures sont rapidement apportées : des freins de même dimension à l’avant et à l’arrière et, en option, une overdrive Laycock…, viennent ensuite les TR2 Serie 2 ou “short doors” (portes courtes) produites à partir de la fin 1954 et dont les portes sont raccourcies et ne descendent plus jusqu’au bas de la carrosserie pour faciliter leur ouverture au dessus d’un trottoir…, les feux arrières sont également modifiés.
On distingue les Triumph TR2 en deux séries : les premières, ou “long doors” (portes longues) produites à partir de 1953, ont les portières qui descendent jusqu’au bas de la carrosserie et des feux arrière différents de ceux montés ultérieurement…, les joncs de liaison des ailes sont peints et les 500 premiers exemplaires de cette série 1 étaient pourvus d’un capot en aluminium, d’un couvre roue de secours et d’un outillage de bord complet…
La production de la nouvelle Triumph TR3 débute donc en octobre 1955 avec le “commission number” TS 8637…, techniquement il ne s’agit pas d’un nouveau modèle mais réellement d’une TR2 légèrement retouchée…, extérieurement, la proue évolue avec une grille de radiateur avancée dite “egg-box” (boîte à œufs) et des joints d’ailes en acier inoxydable (au lieu d’être peints) distinguent la la TR3 d’une TR2…, un nouvel écusson sur le capot moteur complète l’identification…, sur la poupe, les charnières de coffre sont chromées et non peintes.
Diverses et fréquentes évolutions, autant techniques qu’esthétiques, vont conduire tout naturellement la TR2 à évoluer vers la TR3 en 1956, puis la TR3A en 1958…, en 7 ans, le petit roadster britannique va s’imposer comme un véritable best-seller aux USA…, peut-être alerté de la sortie imminente des MGA et Austin Healey 100 BN2, John Black, alors patron du groupe Standard et de la Triumph Motor Company, avance la sortie de la TR3 de plusieurs mois…
Au rang des nouveautés, citons la possibilité de faire ajouter un siège arrière occasionnel pour une 3ème personne, ainsi qu’un hard-top réalisé en fibre de verre…, malgré le peu de nouveautés à se mettre sous la dent, le public américain, déjà habitué à ces évolutions mineures des modèles chaque année, confirme le succès du petit roadster Triumph…, le rythme de production des TR3 est quasiment doublé par rapport à sa devancière !
Grâce à ses deux carburateurs SU H6 de taille supérieure et un collecteur d’admission agrandi, le 4 cylindres 2.0 Standard à culasse “low port” gagne 5 chevaux pour atteindre la puissance de 95 chevaux…, cela étant, la mécanique reste la même que sur la Triumph TR2, avec ses avantages (souplesse et vivacité à bas régime, sonorité évocatrice) et ses défauts (manque de puissance à haut régime, réglage délicat des carburateurs, consommation élevée…), même chose pour les trains roulants qui conservent l’essieu rigide à l’arrière et les freins à tambours aux 4 roues…
En toute logique, les sensation s de conduite sont très proches de la TR2… et la TR3 n’est donc pas avare en la matière…, les performances, d’un autre âge, sont suffisantes pour prendre un maximum de plaisir, assis au ras du sol, mais il faut bien se dire qe le confort comme la tenue de route sont très rudimentaires !
Les expériences en course du jeune département compétition de Triumph conduisent les pilotes à suggérer un certain nombre d’améliorations sur la TR2…, ces changements vont rapidement se retrouver à bord de la TR3…
En 1956, le roadster Triumph reçoit un second silencieux d’échappement qui abaisse sensiblement le niveau sonore, puis en août, c’est le freinage à disques Girling à l’avant (n° TS13046) et le pont arrière renforcé des Standard Vanguard qui sont intégrés…, c’est la première voiture de série anglaise munie de ce type de freins, succédant ainsi à la Citroën DS qui inaugura cette innovation mondiale l’année précédente.
Un kit “GT” est proposé en option, comprenant des poignées de porte extérieures et un hard-top en acier.
Mais la plus grosse évolution intervient en septembre 1957, avec la modification de la face avant du roadster Triumph qui reçoit une nouvelle grille de calandre s’étalant sur toute la largeur et intégrant les clignotant et les feux de position.
Les phares sont reculés de 5 cm sur le capot, les feux arrière ainsi que les pare-chocs sont nouveaux…, sous le capot, encore une fois les retouches sont minimes : la culasse modifiée (high port) apporte 5 chevaux très symboliques permettant d’atteindre la barre des 100 chevaux (SAE) à 5000 tr/mn…, baptisée “wide mouth” (grande bouche), cette évolution héritera par la suite du nom TR3A par les “TR-istes”, avec un A comme America.
Toute la production des usines de Canley est en effet expédiée exclusivement aux USA où cette version va séduire les acheteur comme aucune autre Triumph avant elle…, il faudra attendre janvier 1958 pour pouvoir acheter une Triumph TR3A en Europe (à partir du numéro TS 22’014, les poignées de porte extérieures et de coffre vont être montées en série).
En effet, beaucoup d’acheteurs américains ne se retrouvent pas dans la TR4 qu’ils jugent trop confortable et modernisée…, la TR3A devient ainsi officieusement TR3B (désignation postérieure au modèle et non officielle) pour une première série de 500 exemplaires (n° de châssis commençant par TSF).
La TR3A sera produite jusqu’en octobre 1961, à 90% pour les USA…, mais alors que Standard-Triumph a arrêté la production de la TR3A en octobre 1961, suite au lancement de sa remplaçante la TR4…, la forte baisse des ventes va le contraindre à remettre en route la production des TR3A en mars 1962..
Une seconde série de TR3B est produite jusqu’en octobre 1962 (“commission number” commençant par TCF), alors que la TR4 est parallèlement en production depuis 9 mois déjà…, cette Triumph TR3B série 2, ultime évolution de la TR3, reçoit le moteur 2138cc de la TR4 offrant 105 chevaux et une boîte de vitesses entièrement synchronisée…, extérieurement, il n’y a en revanche aucune différence entre les TR3A et les TR3B.
Des origines agricoles de son moteur, la Triumph TR3 a conservé une robustesse qui faisait encore souvent défaut à ses concurrentes de l’époque…, de cette réputation de fiabilité, en partie justifiée, autant que de sa large diffusion, la Triumph TR3 a ainsi pu conserver une facilité d’entretien et une grande disponibilité de pièces…, deux atouts qui font que les TR3 et TR3A ne sont pas vraiment rares en France, bien que la très grande majorité de la production ait quitté l’Europe pour les USA.
Ayant passé ainsi sereinement la cinquantaine, les beaux exemplaires du petit roadster Triumph jouissent toujours d’une cote d’amour élevée, notamment la version TR3A largement plébiscitée…, en conséquence, les prix de vente n’ont plus tellement de rapport avec le coût d’entretien modique réclamé par sa mécanique simpliste : un minimum de 30.000 € est requis pour une belle TR3 et rarement moins de 37.000 € pour une TR3A…, une somme qui ne doit donc plus être mise en relation avec les piètres performances de l’engin, mais bien avec son statut de collector confirmé.
La majorité des Triumph TR3 ayant été restaurées au moins une fois compte tenu des ravages de la corrosion, on peut donc réellement parler de placement financier.., mais il serait dommage de ne pas en profiter sur la route…
Dans ce cas, on devra principalement faire attention au circuit de refroidissement de la mécanique et au graissage des différents éléments prévus au programme de maintenance…, en dehors de cela, une vidange avec filtre tous les 5000 km et votre Triumph TR3 pourra enchainer les kilomètres de plaisir sans prendre une ride…, à ce titre, l’overdrive permettant d’abaisser le régime moteur de 500 tours est vivement recommandé si vous envisagez de faire de longs parcours assez fréquemment.
Plusieurs voitures “usine” seront préparées par le département compétition Triumph dès la TR2…, pour la TR3, le programme sportif va même devenir très chargé et débute en juin 1956…, au Midnight Sun Rally, le modèle compétition officiel inaugure des freins à disques à l’avant, devançant ainsi les prestigieuses Jaguar…, la TR3 finit ensuite 8ème de la Coupe des Alpes 1956 et Standard-Triumph récolte ainsi son premier titre constructeur.
3ème au général du Liège-Rome-Liège 1957, la TR3 poursuit ses bons résultats…, au rallye des Monte-Carlo 1958, Triumph réalisera sa plus belle performance avec une victoire de classe…, un nouveau moteur à double arbre à cames en tête est développé pour combler le principal défaut de la TR3, son manque de puissance…, cela va conduire Triumph à développer des voitures usine de plus en plus spécifiques pour s’imposer dans les grandes épreuves comme les 12H de Sebring, les Mille Miles, ou encore les 24H du Mans.
Baptisée 20X, une version compétition du moteur fut conçue en interne par Harry Webster…, l’alésage et la course étaient de 90 x 78 mm, donnant une cylindrée exacte de 1.985cc…, contrairement au bloc qui restait en fonte d’acier, la culasse était en alliage léger coulé avec des chambres de combustion hémisphériques et deux soupapes par cylindre…, mais elle se distinguait surtout par ses doubles arbre à cames en tête commandés par chaîne.
Une évolution du moteur 2.0 Standard fût mise en chantier après les 24H du Mans 1955…, si Triumph avait réussi un joli coup médiatique en plaçant sa TR2 à freins à disques, le petit roadster anglais avait dû s’incliner en puissance pure face aux Porsche et Bristol notamment…
Pour faciliter l’assemblage à l’usine et la maintenance, l’entraînement des arbres à cames, de la pompe à huile, de celle à essence, du distributeur et du compte-tours était protégé sous un couvercle en magnésium placé sur le devant du moteur avec deux parties proéminentes qui dépassaient de ce dernier…, cette pièce reçu rapidement le surnom « de “Sabrina” car elle faisait irrésistiblement penser à la généreuse poitrine et aux fesses de Norma Sykes, alias Sabrina, une starlette anglaise du moment…
Avec ses 2 carburateurs double corps SU, la puissance atteignait 150 chevaux à 6.500 tours/mn en version fiabilisée mais pouvait grimper jusqu’à 200 chevaux…, ainsi donc, la Triumph TR3 S engagée au Mans en 1959 inaugura le moteur Sabrina…, puis quatre TRS furent construites et marquèrent l’histoire sportive de la marque Triumph en passant la ligne d’arrivée des 24 Heures du Mans 1960 et 1961 en trio…
Mais faute de véritable “triomphe” sur les grands podiums, avec des ventes en baisse, la fermeture du département compétition fut finalement décidée en 1961 par le groupe Leyland qui racheta Standard-Triumph… et malheureusement, le moteur Sabrina ne sera jamais introduit sur le modèle de série…
J’ai beau être dithyrambique à son sujet, un petit point qui me fâche avec ma TR3A fraîchement acquise : c’est une voiture trop évidente, celle que l’on achète pour avoir LE roadster anglais, un choix pas vraiment teinté d’originalité, en comparaison d’une Corvette 1965 C2 Cabrio 327ci, voire d’une Excalibur S1 Roadster 1966…, pour être parfaite, il lui manque un côté bizarre…, oui, je suis tordu…, la TR3 n’est pas une classique, c’est une icône…, point, à la ligne.
La conduite de la TR3 est pour le moins floue, un défaut compensé largement par le plaisir qu’elle distille…, en bon 4-en-ligne anglais le 2L0 de la TR3 est rugueux et rustique, monter relax dans les tours, mais déborde de couple…, à des années-lumière du panache de la mécanique italienne, mais largement suffisant pour une conduite rapide…, il ne chauffe pas (que cela soit dit, rien à voir avec le V8 d’une Mustang)…, et, la ligne de la TR3A est un des grands classiques de l’automobile : voluptueuse, généreuse, mais parfaitement équilibrée, avec une légèreté palpable dans le moindre centimètre-carré de sa tôle, elle est le maître étalon du roadster anglais !
Le bourrelet qui la recouvre fait office de confortable accoudoir…, on a fière allure au volant de cet engin, mais mis à part amuser les touristes japonais, ça ne suffit pas à dérider les conducteurs blasés, coincés dans les embouteillages.
Dans la Triumph TR3, on est assis très bas et l’échancrure de la porte permet, comme dans une Lotus Seven de toucher le sol du bout des doigts…, heureusement d’ailleurs qu’elle est échancrée, cela permet de passer le bras à l’extérieur, ce qui est indispensable : il n’y a que quelques centimètres entre le large volant et la portière.
Sur le dessus du moyeu, un basculeur en bakélite permet d’actionner les clignotants…, derrière lui, le compteur de vitesse et le compte-tours sont recouverts d’un verre bombé…, la partie centrale du tableau de bord est richement dotée en compteurs variés (ampèremètre, température d’eau, pression d’huile et jauge d’essence), surplombés, sous l’unique rétroviseur, par une tirette qui ouvre un volet au milieu du capot, à la base du pare-brise, envoyant de l’air frais sur les pieds.
Si le passage par l’autoroute est d’un ennui mortel, c’est un moment de calme propice à la découverte de l’habitacle entièrement recouvert de cuir noir, offrant une ambiance sérieuse mais très qualitative…, un peu décentré vers la droite, le volant à la jante tendue de cuir, est très large…, ses trois branches sont composées de quatre tiges métalliques façon Banjo (ce qui lui donne une curieuse souplesse)…
Le moteur gronde dans un mélange évoquant la sonorité d’un zinc de la seconde guerre mondiale…, si la Jaguar XK120 sonne comme un placide bombardier, la tonalité de la TR3 est celle d’un chasseur à hélice en vol de croisière…, le vent balaye de suite les délicieuses effluves de vieux cuir qui baignent l’habitacle, les remplaçant par une odeur tout aussi agréable, tant elle est indissociable de cet univers entre aviation et automobile : celle de l’huile chaude…, le décors est planté, il est temps de sortir de l’autoroute et de s’amuser sur les départementales, parfaitement taillées pour la TR3, mais il faut d’abord trouver le mode d’emploi…
Dès qu’on hausse le rythme, la conduite du roadster s’éloigne radicalement de tout ce qu’on a l’habitude de conduire : la structure à châssis séparé est des plus rigide et en bon 4-en-ligne anglais qu’il est, le moteur a du couple à revendre, les vitesses se passent avec une facilité déconcertante et les rétrogradages ne posent pas le moindre problème…, pas besoin de double débrayage, pas le moindre craquement de pignons, le tout étant de bien comprendre jusqu’où il faut appuyer sur la pédale d’embrayage…
L’armature de la capote est boulonnée à la caisse, mais est nue, dès les deux arceaux déployés, bien plus haut que le pare brise, il apparaît évident qu’une fois la voiture fermée, la tête restera droite…, la capote est dans le coffre, simple bâche dotée d’une lunette arrière souple, à balancer en place, puis à soigneusement arrimer à l’aide de pressions tout autour de la carrosserie et du pare-brise…
Les side screens (les panneaux latéraux amovibles qui servent de vitrage aux portes) se fixent en glissant des tiges métalliques (qui courent sur leurs flancs) dans la portière, puis en verrouillant les deux vis Dutz qui les maintiennent en place, avec la même clé en T qui sert à déverrouiller le capot.
Le moteur crépite, l’échappement mitraille, le vent fouette les oreilles et les chaudes vapeurs d’huile donnent l’impression qu’une friteuse prépare le dîner de fin de balade…, la luminosité déclinante oblige à abdiquer (ce n’est pas sur les antiques phares qu’il faut compter pour lire la trajectoire)…, il est temps de rentrer au plus court, les pieds et les mains congelés, le nez plus rouge que la Triumph… et l’air qui s’engouffre brutalement dans les oreilles, demain sera un autre jour, mais là, pour le moment, dans le flot du trafic, j’arbore l’immense sourire du parfait TR-iste…
Le terrain de jeu idéal pour cette voiture est une départementale qui traverse joyeusement des valons cultivés entourant une suite de villages, les conditions idéales pour écraser l’accélérateur et entendre le moteur gronder jusqu’aux 5000 tr/minutes de la zone rouge du compte-tour, en passant les quatre rapports les uns après les autres pour filer dans le vent…, solidement accroché au volant, un coude dehors, en prenant soin de laisser une marge suffisante d’imprécision entre les roues avant et la corde des virages…
– Triumph TR3 (1955-1957) : 13.377 exemplaires
– Triumph TR3A (1957-1961) : 58.309 exemplaires
– Triumph TR3B (1962) : 3.334 exemplaires

























































































